Ashover Road, Allestree
Project Details:
| LOCATION | Allestree, Derby |
| SIZE | 32 m2 single storey extension – bungalow remodel |
| STAGE | Completed |
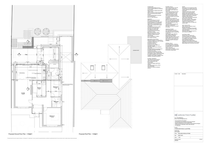
Conversion of a tired 1960’s bungalow into a modern open plan bungalow with a paved courtyard to the rear.
The design involved converting the existing garage at the rear of the property into a Master bedroom with en-suite that could have access onto the patio at the back, which when completed would feel like a courtyard. The single storey extension at the back also meant that the kitchen could be extended and the space could become mixed use either as a formal dining area, or a more cosy living area looking out onto the garden.
Click here to download the elevations (pdf)
Click here to download the plans (pdf)